物件詳細
東戸塚 | 隣の公園に勝る木の存在感 売物件, 成約済
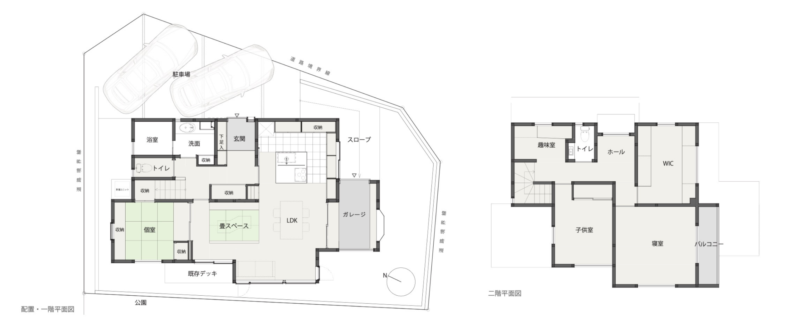
- 間取り
- 6LDK
- 建物面積
- 118.66㎡
- 築年月
- 1985年7月
「公園横大空の下 たたずむ一軒家」
南西側は公園、周囲には高い建物がなく空から太陽の光がたっぷりと差し込む家です。アクセスは「東戸塚」駅から徒歩20分、家から自転車で5分ほどの所にスーパーやコンビニがあります。この家の醍醐味はなんといってもこの外観。
車は2台駐車可能。玄関は木の質感と存在感を感じさせる大胆なデザインとなっています。築古の戸建てで2018年にますいいによって完壁にリノベーションされました。
ナチュラルな木が包み込む部屋
リビングは木の温もりと香りが存分に感じられます。家中どこを見ても木・木・木!この空間に入るだけで心がなんとなく落ち着くのです(本当に)
一段下げて、畳敷きにした掘りごたつ!?
ふと下を向くと不思議な空間があります。日本人だからか、気がついたら畳の上に座っていました。部屋の中で一段レベルが下がっているためとても落ち着く空間です。一人になりたい時はここに隠れて、、、
見つけちゃいましたか、、大人の秘密基地
こちらの写真は大人のロマンが詰まったガレージ。実はリビングの写真にも映り込んでました。リビングで片手にコーヒ、膝の上にはカタログを広げて自分の愛車を眺めます。壁にも小道具がかけられるようになっており、ガレージを好きにデザインすることができます。少しジャンキーにしてみたり野生っぽくしてみたり、、それはまるで海外の映画の中の世界。この家はますいい設計士によるリノベーションによって生まれ変わりました。足を運ぶ頃には、もうこの家の虜でしょう。気になった方は、お気軽にご相談ください。
- 価 格
- 6,100万円
- 建物⾯積
- 118.66㎡
- 階 層
- ⽊造 2階建
- 土地面積
- 169.98㎡
- 所在地
- 神奈川県横浜市戸塚区424-24
- 最寄り駅
- 横須賀線 東戸塚駅徒歩17分
特徴・設備

- ガス

- 上水道
公営水道

- 下水道
公営水道

- 駐輪場

- 駐車場

- バイク置き場

- エレベーター

- エアコン

- コンロ

- 洗濯機置場

- 風呂シャワー

- 独立洗面台

- 浴室乾燥機

- オートロック

- ウォシュレット

- 食器洗浄機
- 土地権利
- 所有権
- 地 目
- 宅地
- 都市計画
- 市街化区域
- 建ぺい率
- 50%
- 容 積 率
- 80%
- 築 年 ⽉
- 1985年7月
- 駐 車 場
- 駐車場2台分
- 現 況
- 居住中
- 引渡可能時期
- 相談
- 接道状況
- 北西5.5m 東5.5m 南東5.5m 3方公道
- 備 考
- 地勢:やや勾配あり








